The Hixton 28×38

Price: $1070

Description

28×38 lofted chalet style log home.

Summary

Floors: 2
Bedrooms: 1
Bathrooms: 1
Footprint: 28′ x 38′
Total Square Feet: 1649 Sq. Ft.
Main Floor: 1064 Sq. Ft.
Loft: 585 Sq. Ft.
Additional Features

Covered porches on two sides
Large open loft could be additional bedrooms
Main level laundry room

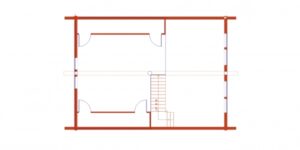
Floor Plans