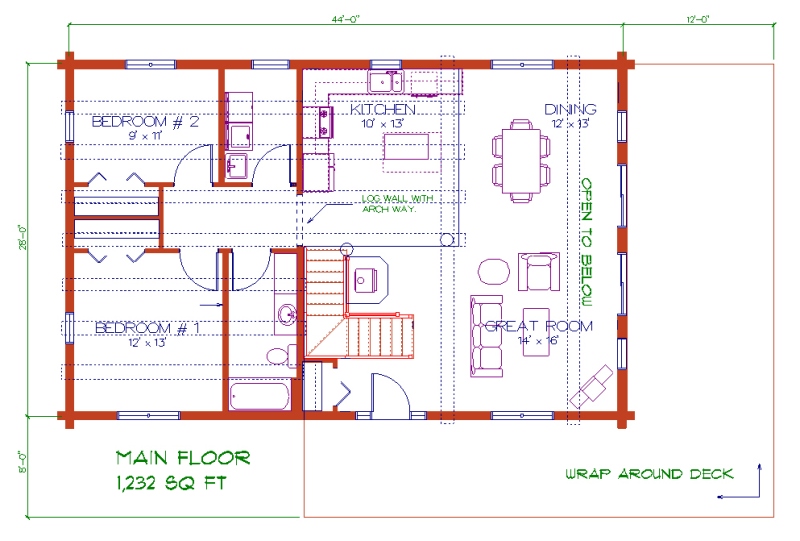
This 28×44 Wisconsin log home plan with 1900 square feet would be a great home anywhere.
This 28×44 Wisconsin log home plan with 1900 square feet would be a great home anywhere.
Walk Out
Easily customized to fit your lifestyle
Huge open loft
Main floor laundry
SoftPlan reView files give you a complete 3d model of this plan. You can view, rotate and walk through the plan using your mouse or keyboard. To view this file, you will need to download and install the FREE SoftPlan reView program.
Plan © Classic Log Homes, Inc.